Guadalupe Eff.
Exec. Offices
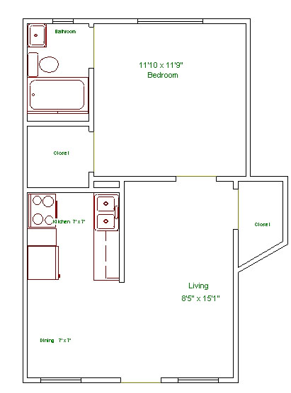
Gateway 1BR
Contact Us
Gateway 1-BR
Living & Bedroom
Kitchen
Amenities
Floor Plan
Map
Contact Us
Gateway Apartments
Floorplan